Скиповый подъемник в Магасе

Цена с НДС:
780 000 рублей
Цена с НДС на скиповый подъемник с доставкой в
от 780 000 рублей
Условия в
В наличии на складе
Доставка ТК по России и Казахстану
Безналичный расчет
Есть в наличии
Подъемник скиповый
Скиповый подъемник
СКИП - подъемник
Подъемник СКИП
Подъемник сыпучих грузов СКИП
Подъемник для сыпучих грузов
Производство скиповых подъемников
Производство скиповых подъемников
Подъемники скиповые
Скиповые подъемники
Подъемник скиповый
СКИП - подъемник
Подъемник сыпучих грузов СКИП
Производство скиповых подъемников
Подъемники скиповые
Видеообзор
Технические
характеристики
Описание
товара
Дополнительное
оборудование
Сертификаты
и гарантии

Технические характеристики скипового подъемника

Тип Скиповый подъемник
Марка Транспортер СКИП
Грузоподъемность 100-1600 кг
Емкость ковша 0.08-1.2 м³
Скорость перемещения ковша 0.16-0.33 м/с
Высота подъема груза 15 м
Угол наклона 70/75/90 °
Средняя плотность материала 1300 кг/м³
Рабочая температура от -45 до 60 °С
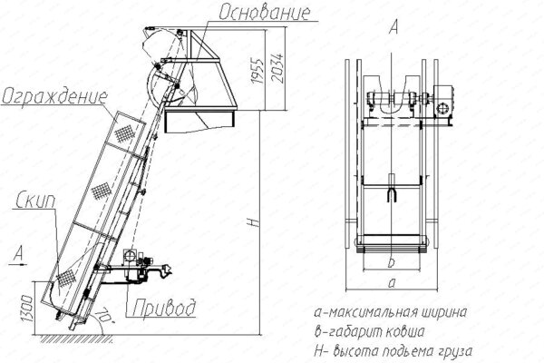
Чертеж транспортера СКИП
Транспортер СКИП чертеж
Чертеж скипового подъемника СКИП
Скиповый подъемник СКИП чертеж
Чертеж подъемника для сыпучих грузов СКИП
Подъемник для сыпучих грузов СКИП чертеж
Схема установки скипового подъемника СКИП
Монтажная схема скипового подъемника СКИП

Скиповый подъемник - это грузоподъёмное оборудование, предназначенное для перемещения сыпучих и мелкокусковых грузов в скипах по рельсовым путям. Скиповые подъемники применяются в горнодобывающей, металлургической и строительной промышленности, они служат для подъема на поверхность угля, руды и других полезных ископаемых. В строительной промышленности скиповые подъемники чаще всего служат для подачи заполнителей бетонной смеси.

Скиповые подъемники СКИП также нашли широкое применение в топливноэнегетической сфере в стационарных котельных, модульных котельных МКУ и транспортабельных котельных КМТ для перемещения угля в вертикальном и круто наклонном положении, с места хранения угля в бункер водогрейного котла.

Конструкция скиповых подъёмников позволяет легко производить дозацию сыпучих грузов по объёму. Скиповые подъёмники могут найти своё применение в любом технологическом процессе.

Скиповый подъемник СКИП перемещает сыпучие смеси в вертикальном и круто наклонном положении, с места хранения приемные бункеры и устройства. Скиповые подъемники могут изготавливаться с заказными характеристиками и геометрическими размерами.

Устройство скиповых подъемников

Скиповый подъемник состоит из подвижного бункера, перемещаемого по направляющим рельсам электролебедкой через систему блоков. Бункер скипа представляет собой металлический короб, на задней стенке которого закреплены блоки и оси с ходовыми колесами. Бункер перемещается по двум направляющим швеллерам, разделенным на сборки, скрепленные поперечными ребрами. Верхняя сборка имеет ответвление от основного направления, которое является пределом движения колес на дне бункера. Дальнейшее продвижение бункера скипа вместе с осью поворота днища вверх открывает дно и выгружает заполнители.

Скорость движения ковша СКИП - 0,2 м/сек и выше, что зависит  от грузоподъемности и высоты подъема.

Скиповые подъемники. Технические характеристики

Наименование Объем ковша, м³
Скип-100 0,085
Скип-200 0,165
Скип-300 0,25
Скип-400 0,35
Скип-600 0,5

Купить скиповый подъемник

Для того что бы купить скиповый пдъемник вы можете сделать заявку в отдел сбыта по телефону 8-800-700-06-43, либо оформить заявку онлайн. Точная стоимость скипового подъемника определяется согласно технического задания и опросного листа. Скиповый подъемник транспортируется автотранспортом и ж/д контейнерами. Для расчета стоимости скипового подъемника и доставки пришлите заявку и инженеры консультанты проведут расчет стоимости СКИПА и его доставки до вашего города или населенного пункта.

Дополнительное оборудование скипового подъемника

ВДП 15 дробилка
Дробилка ВДП-15
1135000 руб. с НДС

Сертификаты и гарантии скипового подъемника

Сертификат для скиповых подъемников
Сертификат на скиповые подъемники

Отзывы о продукции

Другая похожая продукция

1 200 000 ₽